< Back
Main picture of 198 2ND AVENUE SW
Secondary picture of 198 2ND AVENUE SW
Third picture of 198 2ND AVENUE SW

+28

198 2ND AVENUE SW

Arran-Elderslie, Ontario

$481,400.00


3
6
30.2 x 99.1 FT

About This Property:


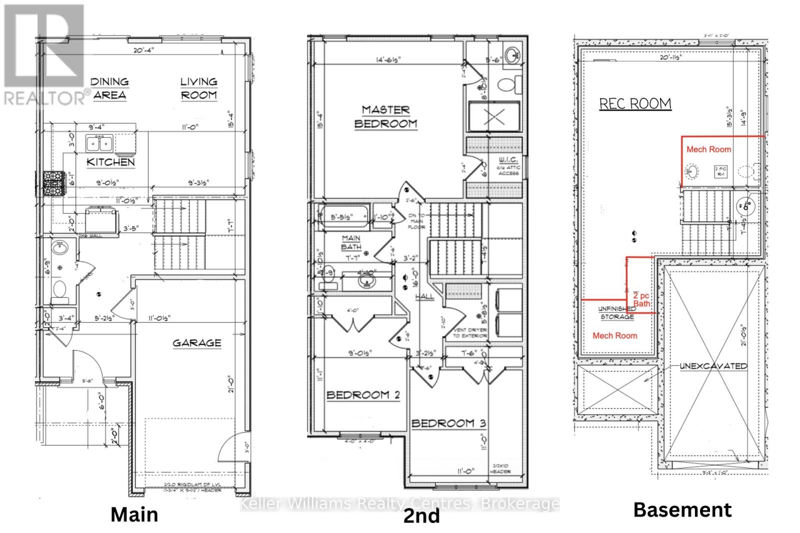
New semi detached home in Chesley built by Candue Homes! This 2-storey home with finished basement is located in an established neighbourhood in Chesley. Featuring an open-concept main floor, the layout is bright and functional. The kitchen offers quartz countertops with overhang barstool seating and includes all appliances. Upstairs you'll find 3 bedrooms and 2 full bathrooms, including a large primary suite with a walk-in closet and 3 piece ensuite. Quartz counters also in the main and ensuite baths. Outside, enjoy a paved driveway, fully fenced and sodded yard, great for pets or kids. Move-in ready in January 2026 and full of modern touches. Tarion warranty included.

Listing Info:

Price:
$481,400.00
Dwelling Type:
Freehold
Property Type:
Single Family
Stories:
2
Bedrooms:
3
Bathrooms:
4
Partial Bathrooms:
2
Lot Size:
30.2 x 99.1 FT
Construction Style:
Semi-detached
Exterior Finish:
Stone, Vinyl siding
Foundation Type:
Poured Concrete
Status:
For sale

Room Information:

FloorTypeSize
Second levelBedroom4.6736 m x 4.4196 m
Second levelBedroom 23.3782 m x 2.7432 m
Second levelBedroom 33.3528 m x 3.3528 m
Second levelLaundry room1.7272 m x 2.286 m
Main levelDining room2.8448 m x 2.4638 m
Main levelFoyer4.2672 m x 2.5908 m
Main levelKitchen2.8448 m x 3.3782 m
Main levelLiving room3.3528 m x 4.6736 m
BasementRecreational, Games room6.639 m x 5.727 m
BasementRecreational, Games roomMeasurements not available
BasementUtility room1.495 m x 2.735 m
BasementUtility room2.23 m x 1.64 m

Location:

Address: 198 2ND AVENUE SW, Arran-Elderslie, Ontario, N0G1L0


Realtor